首页
珠江愉景豪庭
期房
住宅
商铺
全部(13)
2室(2)
3室(8)
4室(3)
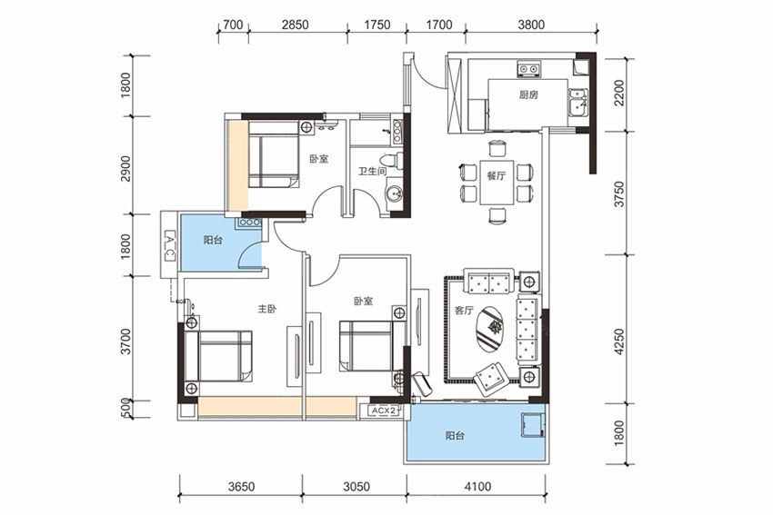
户型标题 :
B户型(南边户)[在售]
户型面积 :
建面约124.00平米
户型详细 :
3室2厅1厨1卫
户型类型 :
住宅户型
户型朝向 :
户型标签 :
楼盘其它户型
在售
3室 2厅 1卫
建面约 : 129.00平米
在售
3室 2厅 1卫
建面约 : 124.00平米
在售
3室 2厅 2卫
建面约 : 107.55平米
在售
3室 2厅 2卫
建面约 : 101.14平米
在售
3室 2厅 1卫
建面约 : 120.00平米
预约看房
提交信息预约看房
电话咨询
隐私保护加密拨打
确认
我已阅读并同意
《用户服务协议》
请留下您的手机号码
为了保证您的权益,
请留下您的手机号码,
我们会严格保护您的信息安全。
确定
我已阅读并同意
《用户服务协议》
和
《免责声明》