首页
环球中心
期房
住宅
商铺
全部(8)
3室(5)
4室(3)
户型标题 :
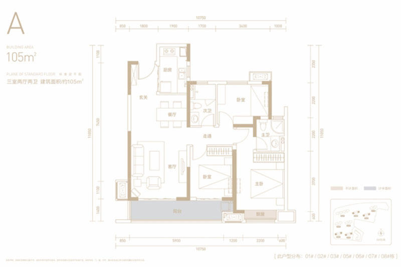
A户型[在售]
户型面积 :
建面约105.00平米
户型详细 :
3室2厅1厨2卫
户型类型 :
住宅户型
户型朝向 :
户型标签 :
楼盘其它户型
在售
3室 2厅 2卫
建面约 : 105.00平米
在售
3室 2厅 1卫
建面约 : 95.00平米
在售
3室 2厅 2卫
建面约 : 124.00平米
在售
3室 2厅 2卫
建面约 : 125.00平米
在售
3室 2厅 2卫
建面约 : 105.00平米
预约看房
提交信息预约看房
电话咨询
隐私保护加密拨打
确认
我已阅读并同意
《用户服务协议》
请留下您的手机号码
为了保证您的权益,
请留下您的手机号码,
我们会严格保护您的信息安全。
确定
我已阅读并同意
《用户服务协议》
和
《免责声明》